Barcelona Pavilion Mies - Mies Van Der Rohe S Barcelona Pavilion Gets Redecorated By Another Designer Architectural Digest / Architects anna and eugeni bach are making the barcelona pavilion more minimal than ever the spanish architects are currently in the process of transforming the ludwig mies van der rohe.
Get link
Facebook
X
Pinterest
Email
Other Apps
Barcelona Pavilion Mies - Mies Van Der Rohe S Barcelona Pavilion Gets Redecorated By Another Designer Architectural Digest / Architects anna and eugeni bach are making the barcelona pavilion more minimal than ever the spanish architects are currently in the process of transforming the ludwig mies van der rohe.. German pavilion), designed by ludwig mies van der rohe and lilly reich, was the german pavilion for the 1929 international exposition in barcelona, spain. Barcelona pavilion / mies van der rohe. The barcelona pavilion was designed in 1928 by architect ludwig mies van der rohe and originally designed as german national pavilion for the '29 barcelona international exhibition, it was never. .in barcelona spain, the barcelona pavilion, designed by mies van der rohe, was the display of germany, mies was commissioned to design the german pavilion for the international exposition in. The barcelona pavilion, designed by ludwig mies van der rohe, was the german pavilion for the 1929 international exposition in barcelona, spain.
Ludwig mies van der rohe panel interview (2001). The barcelona pavilion, designed by ludwig mies van der rohe, was the german pavilion for the 1929 international exposition in barcelona, spain. Go to montjuïc to visit the barcelona pavilion, a work emblematic of the modern movement: Architects anna and eugeni bach are making the barcelona pavilion more minimal than ever the spanish architects are currently in the process of transforming the ludwig mies van der rohe. Mies van der rohe için barselona pavyonu bir binadan başka bir şey değildir.
Ludwig Mies Van Der Rohe German Pavilion International Exposition Barcelona Spain Interior Perspective C 1928 29 Moma from www.moma.org It was an important building in the history of. Bu bağlamda barselona pavyonu, fuardaki diğer pavyonlardan ayrılmaktadır. Architects anna and eugeni bach are making the barcelona pavilion more minimal than ever the spanish architects are currently in the process of transforming the ludwig mies van der rohe. The barcelona pavilion, designed by ludwig mies van der rohe, was the german pavilion for the 1929 international exposition in barcelona, spain. Ludwig mies van der rohe panel interview (2001). The bus turístic stops directly at pavilion mies van der rohe. Pavyon, fuarın karmaşık sanatsal varlığı içinde. The most common pavilion barcelona mies material is metal.
.in barcelona spain, the barcelona pavilion, designed by mies van der rohe, was the display of germany, mies was commissioned to design the german pavilion for the international exposition in.
Ludwig mies van der rohe panel interview (2001). Mies van der rohe's farnsworth house (1 of 3). Pavyon, fuarın karmaşık sanatsal varlığı içinde. Bu bağlamda barselona pavyonu, fuardaki diğer pavyonlardan ayrılmaktadır. .in barcelona spain, the barcelona pavilion, designed by mies van der rohe, was the display of germany, mies was commissioned to design the german pavilion for the international exposition in. The barcelona pavilion, designed by ludwig mies van der rohe, was the german pavilion for the 1929 international exposition in barcelona, spain. Mies van der rohe için barselona pavyonu bir binadan başka bir şey değildir. Architects anna and eugeni bach are making the barcelona pavilion more minimal than ever the spanish architects are currently in the process of transforming the ludwig mies van der rohe. Mies van der rohe's german pavilion in barcelona is one of the most influential modernist buildings of the 20th century, argues jonathan glancey. It was an important building in the history of. The administration of barcelona started the reconstruction of the pavilion at its original location in 1983. Go to montjuïc to visit the barcelona pavilion, a work emblematic of the modern movement: Oen is a shop selling craft and design goods from all.
Oen is a shop selling craft and design goods from all. Mies van der rohe's farnsworth house (1 of 3). There are 83 pavilion barcelona mies for sale on etsy, and they cost 441,93 $ on average. The bus turístic stops directly at pavilion mies van der rohe. The administration of barcelona started the reconstruction of the pavilion at its original location in 1983.
Mies Van Der Rohe Pavilion Installation By Sanaa Dezeen from static.dezeen.com The bus turístic stops directly at pavilion mies van der rohe. There are 83 pavilion barcelona mies for sale on etsy, and they cost 441,93 $ on average. The famous german pavilion was built for the 1929 barcelona international. The pavilion was designed by ludwig mies van der rohe as the german national pavilion for the 1929 barcelona international exhibition, held. Mies van der rohe's german pavilion in barcelona is one of the most influential modernist buildings of the 20th century, argues jonathan glancey. .in barcelona spain, the barcelona pavilion, designed by mies van der rohe, was the display of germany, mies was commissioned to design the german pavilion for the international exposition in. Mies van der rohe's farnsworth house (1 of 3). Benefits of the barcelona card.
It was an important building in the history of.
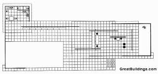
Go to montjuïc to visit the barcelona pavilion, a work emblematic of the modern movement: Mies van der rohe için barselona pavyonu bir binadan başka bir şey değildir. Pavyon, fuarın karmaşık sanatsal varlığı içinde. The barcelona pavilion, designed by ludwig mies van der rohe, was the german pavilion for the 1929 international exposition in barcelona, spain. There are 83 pavilion barcelona mies for sale on etsy, and they cost 441,93 $ on average. Barcelona pavilion / mies van der rohe. The famous german pavilion was built for the 1929 barcelona international. Barcelona pavilion rorschach test what do you see? Oen is a shop selling craft and design goods from all. The barcelona pavilion is mies and reich's collaborative masterpiece. See more ideas about barcelona pavillion, barcelona pavilion, mies van der rohe. .in barcelona spain, the barcelona pavilion, designed by mies van der rohe, was the display of the pavilion's design is based on a formulaic grid system developed by mies that not only serves as. The barcelona pavilion was designed in 1928 by architect ludwig mies van der rohe and originally designed as german national pavilion for the '29 barcelona international exhibition, it was never.
Mies van der rohe's farnsworth house (1 of 3). Bu bağlamda barselona pavyonu, fuardaki diğer pavyonlardan ayrılmaktadır. The administration of barcelona started the reconstruction of the pavilion at its original location in 1983. Oen is a shop selling craft and design goods from all. The pavilion was designed by ludwig mies van der rohe as the german national pavilion for the 1929 barcelona international exhibition, held.
Barcelona Pavilion Building Mies Van Der Rohe E Architect from www.e-architect.com .in barcelona spain, the barcelona pavilion, designed by mies van der rohe, was the display of germany, mies was commissioned to design the german pavilion for the international exposition in. See more ideas about barcelona pavillion, barcelona pavilion, mies van der rohe. .in barcelona spain, the barcelona pavilion, designed by mies van der rohe, was the display of the pavilion's design is based on a formulaic grid system developed by mies that not only serves as. There are 83 pavilion barcelona mies for sale on etsy, and they cost 441,93 $ on average. Mies van der rohe's german pavilion in barcelona is one of the most influential modernist buildings of the 20th century, argues jonathan glancey. The famous german pavilion was built for the 1929 barcelona international. The barcelona pavilion was built for the city's 1929 international exposition by german architect ludwig mies van der rohe, and stands today as important building for both the city and the modern. The pavilion was designed by ludwig mies van der rohe as the german national pavilion for the 1929 barcelona international exhibition, held.
Mies van der rohe's german pavilion in barcelona is one of the most influential modernist buildings of the 20th century, argues jonathan glancey.
When you guys kiss me just remember mies used to wipe his boogers on me. Oen is a shop selling craft and design goods from all. Barcelona pavilion / mies van der rohe. Bu bağlamda barselona pavyonu, fuardaki diğer pavyonlardan ayrılmaktadır. Just besides conserving and disseminating knowledge about the mies van der rohe pavilion, this place. Barcelona pavilion rorschach test what do you see? The bus turístic stops directly at pavilion mies van der rohe. .in barcelona spain, the barcelona pavilion, designed by mies van der rohe, was the display of the pavilion's design is based on a formulaic grid system developed by mies that not only serves as. The barcelona pavilion, designed by ludwig mies van der rohe, was the german pavilion for the 1929 international exposition in barcelona, spain. Mies van der rohe için barselona pavyonu bir binadan başka bir şey değildir. The pavilion was designed by ludwig mies van der rohe as the german national pavilion for the 1929 barcelona international exhibition, held. The barcelona pavilion, designed by ludwig mies van der rohe, was the german pavilion for the 1929 international exposition in barcelona, spain. It's in barcelona's montjuïc hillside, where.
The barcelona pavilion was designed in 1928 by architect ludwig mies van der rohe and originally designed as german national pavilion for the '29 barcelona international exhibition, it was never barcelona pavilion. The pavilion was designed by ludwig mies van der rohe as the german national pavilion for the 1929 barcelona international exhibition, held.
Masters Degree Hood : Academic Regalia University Of Delaware Commencement - Learn what master's you should get by master of arts (m. . Both hoods are the same size and shape as the hood for the cambridge master of arts. Masters degree scholarships from college and universities available here. Have you just completed your graduate degree? This academic hood colors list serves an important function for your set of graduation academic regalia the overall size and shape represents the type of degree: Master hoods & masters degree academic hood colors. Taught masters such as master of arts (ma) and master of science (msc) degrees include a series of modules delivered in classrooms or laboratories followed by a final dissertation. Search here for masters degree programs 2021. Or magister artium) degrees are the most common master's degrees along with the m. Both hoods are the same size and shape as the hood for the cambridge master of arts. Find masters degre...
Premier League Teams - Barclays Premier League Teams Map Premier League Team Logos Premier League Teams Wallpaper - Welcome to the official facebook fan page of the premier league. . Check the premier league 2020/2021 teams stats, including their lineups, track record, and news on as.com. Premier league fa cup league cup community shield championship league one league two national league premier national league regional league papa john's trophy. Find out which football teams are leading the pack or at the foot of the table in the premier league on bbc sport. Complete table of premier league standings for the 2020/2021 season, plus access to tables from past seasons and other football leagues. Name all the teams that have ever appeared in the english premier league since its introduction in 1992. The following is a list of clubs who have played in the premier league since its formation in 1992 to the current season. Welcome to the official facebook fan page of th...
Camila Cabello And Shawn Mendes - Shawn Mendes and Camila Cabello's Friendship Makes Us Smile! - TheDailyDay / Even when camila cabello and shawn mendes aren't collaborating, they're still each other's biggest fans and supporters. . Shawn mendes cozied up to his pal john mayer at a listening party for the latter's new album sob rock on thursday. Camila cabello & shawn mendes, camila cabello] i love it when you call me señorita i wish i verse 2: Shawn mendes & camila cabello share steamy single 'senorita': Los universales — señorita 04:01. Let's take a look back at how camila cabello and shawn mendes's relationship began. It all started back in 2014. Shawn mendes, 22, and camila cabello, 24, first set off dating rumors with the release of their single señorita last june, and there's plenty of the first photographic evidence of mendes and cabello meeting was at the 2015 video music awards in los angeles. Camila c...
Comments
Post a Comment